Не упусти свой шанс! Последние акции от застройщиков  ▼

Продается 1-комнатная квартира, Народного Ополчения ул., 15К2

24 500 000 Р

Народного Ополчения ул.15К2

Дата публикации: 18 декабря 2025

Дата обновления: 15 января 2026

Телефон: 
Показать телефон

+7 (499) 372-92-13

Агентство:  МИЭЛЬ

От застройщика: 0 квартир в продаже

Этаж: 12 / 58

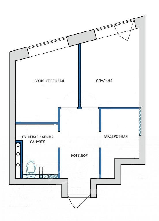
Общая: 37,1 м2

Жилая: 9,9 м2

Кухня: 9,7 м2

Комнаты: 10 м2

Балкон/лоджия: балкон

Лифт: есть лифт

Окна: окна во двор

Санузел: совмещенный

Мусоропровод: не указано

Состояние квартиры: евроремонт

Тип дома: монолитный

Год постройки: 2022

Территория: огороженная

Парковка: не указано

Статус сделки: продажа

Сделка: прямая продажа

Собственность: не указано

Основание права собственности: не указано

Описание

Арт. 127890530
Вашему вниманию предлагается аккуратная, светлая, уютная однокомнатная квартира, идеально подходящая либо под арендный бизнес, либо для жизни семейной пары или одного человека.
В квартире выполнен качественный ремонт, отделка выполнена с использованием высококачественных материалов. В квартире никто не проживал. Есть небольшой балкон. Окна во двор. Высокие потолки - 3.1 м.
Вся мебель в квартире новая от Дантон Хоум, включая просторный гардероб. Кухня оснащена новой необходимой бытовой техникой: духовой шкаф, стиральная машина, холодильник, морозильник. В спальне установлен телевизор smart TV, подключен интернет. В квартире двойной свет. Шторы black out. Кондиционер Хайер. Установлен домофон Фермакс с видеонаблюдением и возможностью принимать звонки на мобильный телефон.
Квартира расположена в престижном жилом комплексе бизнес-класса Wellton Towers. Здание монолитное, 58 этажей. Год постройки 2022. Три корпуса дома соединены трехуровневым стилобатом с ландшафтным парком на крыше. На каждом этаже просторный лифтовый холл в котором шесть лифтов, в том числе есть грузовые. Для жителей оборудованы прогулочные аллеи, зоны отдыха, площадки, спортивные и игровые зоны, дорожки для роликов и велосипедов. Двор без машин с садом только для жителей. Премиальная отделка входных групп и зон общего пользования. Консьерж-сервис
Хорошая транспортная доступность. На пересечении улицы Народного Ополчения и проспекта Маршала Жукова - новая станция метро "Народное Ополчение", 10 мин. транспортом до станций метро "Полежаевская" и "Октябрьское Поле". От станции метро "Народное ополчение" до ЖК Wellton Towers проложен подземный переход.
Инфраструктура: Рядом с домом есть все необходимое и в шаговой доступности: супермаркет "Перекресток", "Азбука Вкуса", рестораны, частная гимназия с бассейном, артстудия, муниципальная гимназия с дошкольным отделением, поликлиника, больница, музыкальная школа, теннисный клуб. Дом находится в 15 минутах от набережной.
Условия продажи
Свободная продажа, один взрослый собственник с момента постройки дома. ДДУ более 5 лет. Квартира без обременений. Первая продажа, полная сумма в договоре, юридически безукоризненные документы. Быстрый выход на сделку.
Преимущества покупки с МИЭЛЬ: покупателю выдается Правовой сертификат, гарантирующий юридическую чистоту объекта; возможна ипотека с особыми условиями от банков-партнёров; бонусы по партнёрским программам на товары и услуги известных брендов.

Квартира на карте

ПанорамыКарта
Спецпредложения
Добавить объявление